Heinrich-v-Kleist-Oberschule, Ergänzungsbau
| Fertigstellung: | 2019 |
|---|
1 Städtebauliches Konzept
Das Baugrundstück befindet sich in einem gewachsenen Gründerzeitviertel mit drei- bis viergeschossigen Bauten und heute weitgehend leer geräumten Blockinnenbereichen. Der Baublock der Schule wird durch eine Straßenbahntrasse zerschnitten. Geplant ist hier ein Stück nachhaltige Stadtreparatur:
- Schließung des Blockrandes durch das geplante Gebäude. Seine Höhe definiert den angrenzenden öffentlichen Raum und "rahmt" so beidseitig das benachbarte Denkmal Kulturhaus und wertet es in seiner Besonderheit auf.
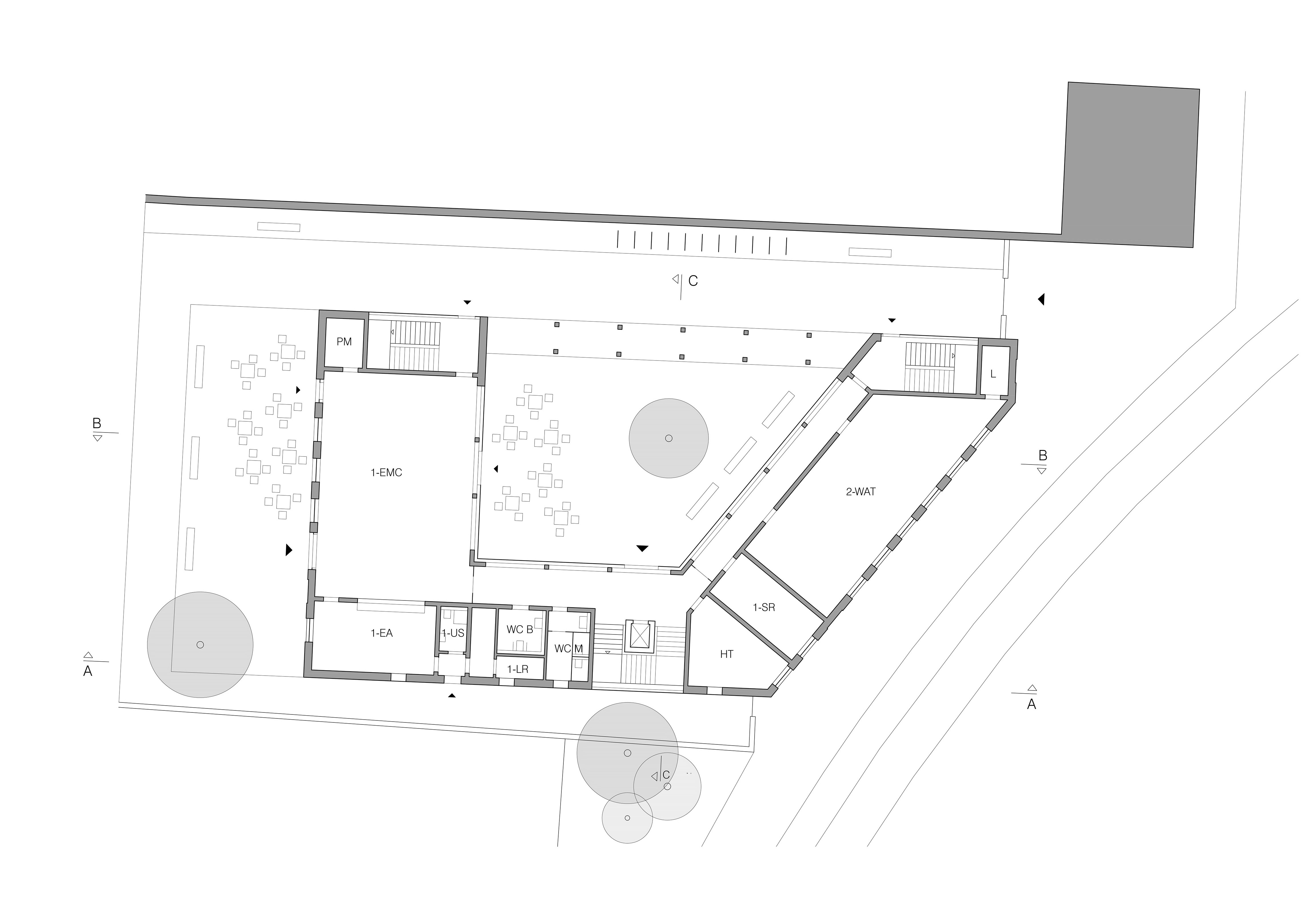
- Schaffung von drei definierten Außenräumen unterschiedlicher Qualität: Neben der Fassung des öffentlichen Raumes und des sonnigen sportlichen Schulhofs entsteht ein durch eine Pergola gefasster interner schattiger Schulhof am neuen Gebäude.
- Gestaltung eines angenehmen ca. 6 m breiten abwechslungsreichen Durchgangs vom Hauptgebäude der Schule zum Dredner Platz, Bahnhof und der Innenstadt.
- Begrenzung der Versiegelung durch einen kompakten viergeschossigen Baukörper.
2 Architektonisches Konzept
Grundrisse
Das Konzept sieht einen klar gegliederten, hellen und kommunikativen, gleichwohl auch konzentrierte Arbeit ermöglichenden Schulbau vor. Er ist offen für spätere Nutzungsänderungen und erfordert keine aufwändige Brandschutz- oder Haustechnik, so dass die Lebenszykluskosten gering bleiben.
- Die Erschließung erfolgt übersichtlich durch die Pergola und den Innenhof über ein zentrales offenes Treppenhaus in der Mitte des Gebäudes, so dass die Wege zu allen Räumen kurz sind. Am Ende jedes Flures befindet sich für den Brandfall ein Nottreppenhaus, so dass es von jedem Raum aus Rettungswege in zwei Richtungen gibt.
- Lediglich die Mensa wird vom Schulhof außerdem direkt erschlossen. Eine von den Schülern getrennte Anlieferung der Mensa befindet sich auf der Südseite. Außensitzplätze vor der Mensa sind auf dem sonnigen Schulhof und schattigen Innenhof vorgesehen.
- Innenliegende Flure und Treppenräume werden gänzlich vermieden. Auch wenn dies eine weniger kompakte Bauform und damit geringfügig höhere Baukosten bedeutet, wird sich dieses in der den Schulalltag prägenden Atmosphäre und im pfleglichen Umgang mit der Bausubstanz der Schüler langfristig lohnen.
- Alle Nutzräume sind barrierefrei erschlossen.
- Die Dimensionierung, Belichtung und die Raumformen der Fachräume entsprechen den Ergebnissen eines Fachrauminventars aller weiterführender Schulen, das pmp für die Stadt Düsseldorf durchführen durfte.
- Das Gebäude eignet sich sowohl für eine Ausstattung mit Solarkollektoren auf dem Dach wie auch für die Energieversorgung über eine Erdwärmeanlage.
Nutzungsverteilung
- Erdgeschoss: Mensa und Nebenräume, Fachraum WAT, Sanitäts- und Technikraum
- 1. OG: Chemiefachraum, Physikfachraum, jeweils mit Vorbereitungsräumen
- 2. OG: 2 Informatikfachräume mit Vorbereitungsräumen sowie Räume für Sozialpädagogik, Stichwort „Projekt Richtungswechsel“
- 3. OG: Musikraum, Kunstraum, jeweils mit Vorbereitungsräumen
Fassaden
Altberesinchen ist geprägt durch den spannungsreichen Gegensatz aufwändig stuckierter Straßenfassaden, einfacherer Rückfassaden und gänzlich glatter Brandwände. Überwiegend handelt es sich um Putzbauten. Das Hauptgebäude der Schule ist dabei ein gebänderter Backsteinrohbau, bei dem auch die Hofseite ebenso aufwändig gestaltet ist wie die Frontfassade.
Diese Vielfalt nimmt das geplante Gebäude auf: Straßen- und Hoffassade nehmen Bezug auf charakteristische Elemente der historistischen Bebauung und übersetzen sie in eine zeitgemäße, gleichwohl zurückhaltende Formensprache. Nicht der Kontrast „Alt gegen Modern“ ist hier die angemessene Lösung, sondern vielmehr die respektvolle Stadt-reparatur:
- Die backsteinsichtigen„Schaufassaden“ des Neubaus stellen die Verbindung zum Schulaltbau her und betonen die Geschosse durch schlichte, unprofilierte Geschossgesimse, die auch unsichtbar die Verschattungselemente aufnehmen. Die Fassaden erhalten weitere Tiefe durch die zurückgesetzten Fenster und Brüstungsfelder. Lebendigkeit entsteht dazu dadurch, dass genau an den Stellen, wo Trennwände auf die Fassade treffen, Blindelemente angeordnet sind.
- Die verputzten „Giebelfassade“ sind demgegenüber unprofiliert und flach gestaltet. Durch verschiedene Fensterformate und die großflächige Verglasung des Treppenhauses erhält die Südwand gleichwohl Spannung und Komplexität. Die „Giebelfassaden“ nach Norden sind ebenfalls geputzt und durchlässig durch die Verglasung der Treppenhäuser gestaltet, ansonsten bilden sie ebenso wie die Südfassade einen Gegensatz zu den backsteinsichtigen „Schaufassaden“
- Ganz anders die „Innenfassaden“: Sie sind voll verglast. Hier soll ein die Geschosse übergreifende Sichtverbindung zwischen den verschiedenen Nutzungen immer wieder hergestellt werden, alle Flure können alle Flure einsehen, es entsteht eine Lebendigkeit, die den belebten Eingangshof einschließt.
3 Leitgedanke
Respekt gegenüber dem Bestand, klare qualitätvolle Gestaltung der Innen- und Außenräume: „(…) man möchte sagen: das Einfache ist nicht immer das Beste; aber das Beste ist immer einfach (…)“
Heinrich Tessenow: Hausbau und dergleichen, Stuttgart 1953, S. 34.








